CASE 05
ヨドコウ桜スタジアム
ヨドコウ桜スタジアム
株式会社セレッソ大阪様 事務所
ON
OFF
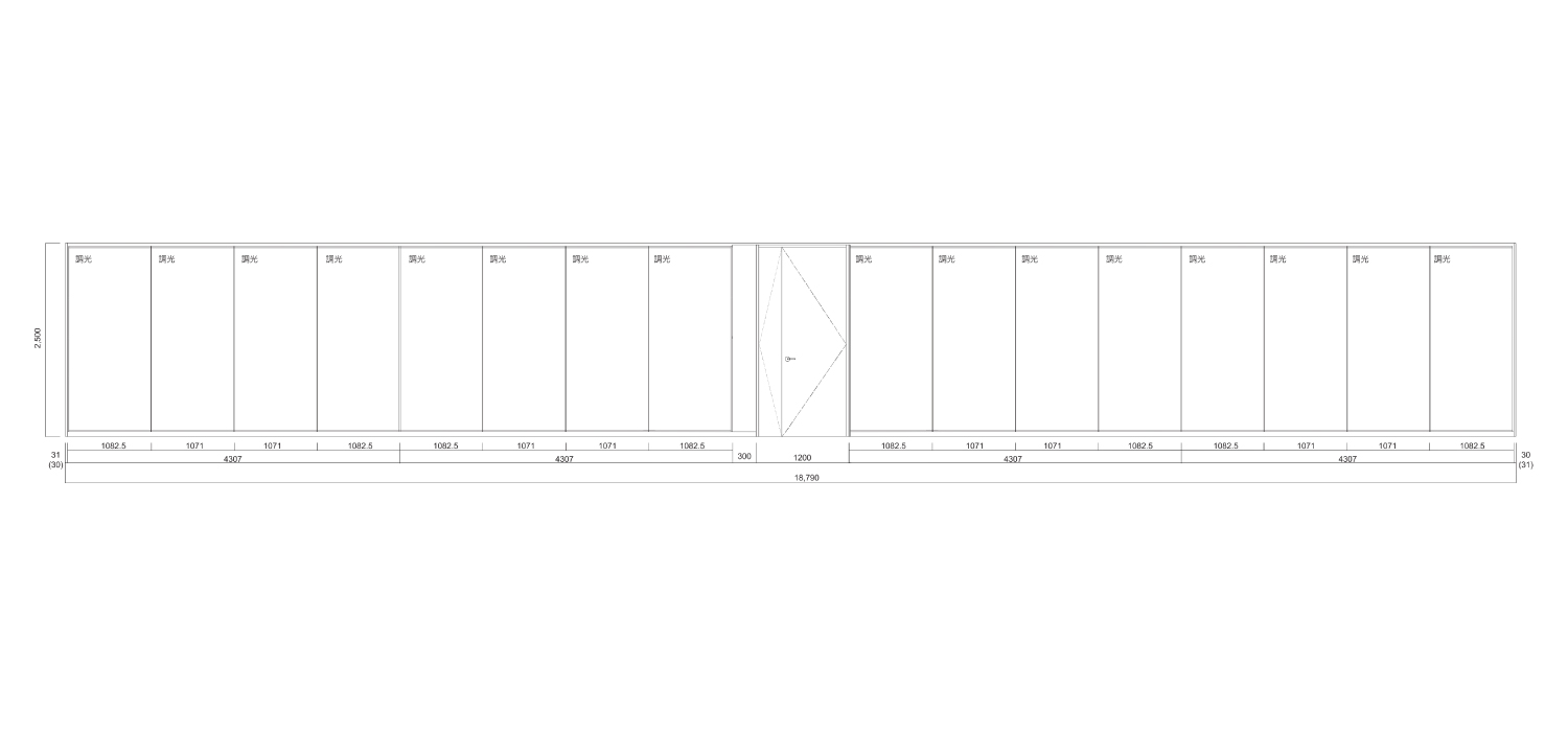
■N-Smart仕様
| 調光ガラスサイズ(mm) | 約W1,082.5*H2,500×8枚、 約W1,071*H2,500×8枚 |
|---|---|
| パーティションサイズ(mm) | 約W18,790×H2,500 |